40
$344,000 Sale
Listed 4 hours ago
415 Commonwealth Road Unit# 458
· 1
· 1.0
· 3
· 633
Key Facts
Key facts for 415 Commonwealth Road Unit# 458
Property Type
Manufactured, Manufactured Home
Parking
Garage: No, 3 parking
MLS #
10364727
Size
633 sqft
Basement
-
Listed on
-
Lot size
-
Tax
-
Days on Market
-
Year Built
2020
Maintenance Fee
$5,188/mo
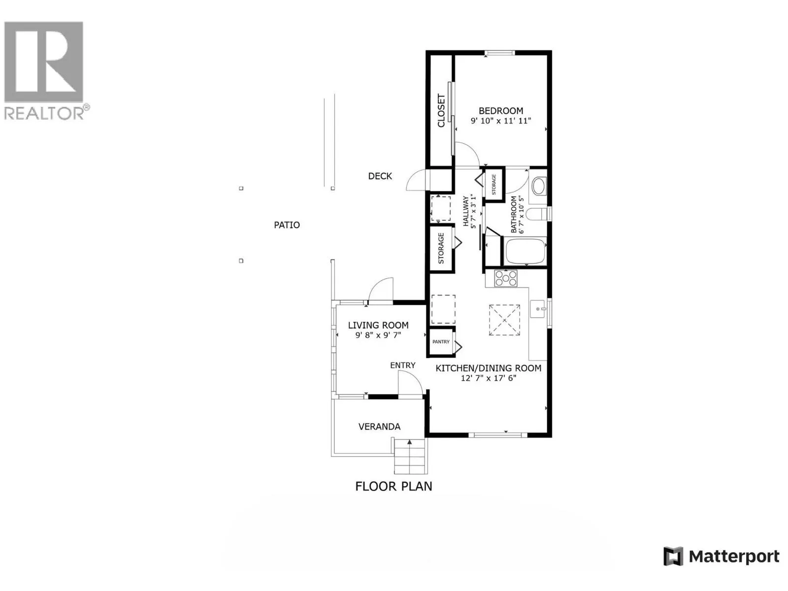
Description
Discover perfect resort-style living in the heart of the Okanagan at 458-415 Commonwealth Rd. This charming 1-bedroom, 1-bathroom home boasts 633 sq ft of modern, move-in ready comfort, tucked among the trees on a 3,315 sq ft lot. Enjoy sleek finishes like a barn door, large soaker tub, California c...loset, in-floor heating, gas stove, and on-demand hot water. Ideal for vacationers and retirees, this 19+ community allows kids for 3 months a year and features pre-paid lease to 2046 with no PTT. With maintenance-free living and low annual fees, you'll have more time to relish the fantastic amenities: pools, hot tubs, a fully equipped gym, tennis and pickleball courts, basketball court, golf course, woodworking, exercise classes, bingo, and live bands every Thursday. The large deck and gazebo under a magnificent maple tree provide a serene outdoor retreat. Pet-friendly with rental opportunities, this home is a rare gem in a vibrant, active community. Vendor take back financing available. (id:10452)
Similar Properties (No results)
Room Types
3pc Ensuite bath
-
Dimensions 10'5'' x 6'7''
68.58 sqft
Kitchen
-
Dimensions 17'6'' x 12'7''
220.21 sqft
Living room
-
Dimensions 9'7'' x 9'8''
92.64 sqft
Listing courtesy of: Vantage West Realty Inc.
This REALTOR.ca listing content is owned and licensed by REALTOR® members of The Canadian Real Estate Association.